Optimal als Lager oder Werkstatt: Garagenbox mit Sektionaltor in Linkenheim-Hoch.

76351 Linkenheim-Hochstetten, Lagerfläche zur Miete

Kontaktdaten

Gino Novellese, Cuffaro Immobilien

Objektdaten

  • Objekt ID
    602
  • Objekttypen
    Halle/Lager/Produktion, Lagerfläche
  • Adresse
    76351 Linkenheim-Hochstetten
  • Gesamtfläche ca.
    36 m²
  • Lagerfläche ca.
    36 m²
  • Wesentlicher Energieträger
    Gas
  • Baujahr
    2022
  • Zustand
    neuwertig
  • Verfügbar ab
    nach Absprache
  • Mieter­provision (gewerblich)
    2 Monatskalttmieten, inkl. MwSt.; verdient und fällig mit Abschluß des Mietvertrages
  • Kaution
    1.200,00 EUR
  • Kaltmiete
    400,00 EUR
  • Nettokaltmiete
    400,00 EUR
  • Summe Miete netto
    400,00 EUR
  • Betriebskosten brutto
    100,00 EUR

Ausstattung / Merkmale

  • Gäste-WC
  • Gewerblich nutzbar
  • Kein Keller

Energieausweis

nicht erforderlich

Objekt­beschreibung

Beschreibung

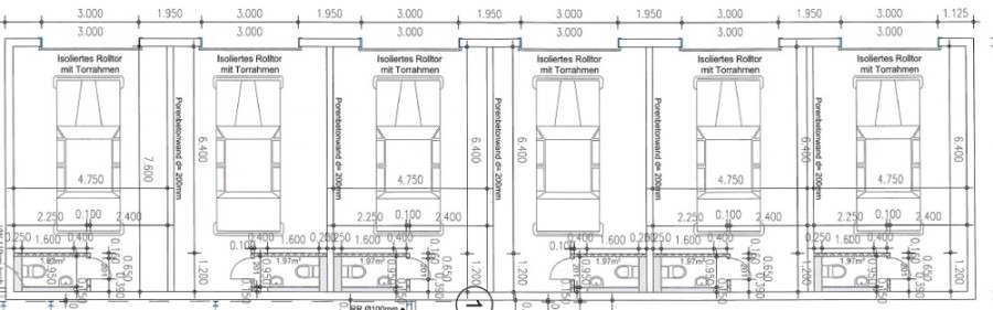
In bester Lage im neuen Gewerbegebiet Römeräcker in Linkenheim-Hoch. wird eine dieser 8 Lager- /Garagenboxen neu vermietet. Die Garagen sind mit elektrischem Sektionaltor, WC und Waschbecken, Lufterhitzer und vorbereitetem KAT-7-Anschluß ausgestattet. Mit einer Größe von 36 m² sind für viele Nutzungsmöglichkeiten geeignet.

Auf dem Grundstück sorgt eine Videoüberwachungsanlage für Sicherheit.

Ausstattung

+ individuell ausbaubar

+ Lufterhitzer

+ Ölabscheider

+ Videoüberwachung

+ WC mit Waschbecken

+ Großes Sektionaltor

+ Starkstromanschluß

Sonstige Informationen

Interessiert? Dann freuen wir uns über Ihre Anfrage.

Falls Sie einen größeren Platzfbedarf haben, sprechen SIe uns an - vielleicht haben wir doch das Passende für Sie.

Lage

DieBoxen befindet sich im neuen Gewerbegebiet "Römeräcker" in Linkenheim-Hochstetten. Zur Bundesstraße B 36 in Richtung Karlsruhe, Bruchsal und Mannheim besteht eine direkte Anbindung. Dadurch sind Sie an das übergeordnete Straßennetz mit den Autoabahnen A 5 und A 8 angeschlossen.

Google Maps

Mit dem Laden der Karte akzeptieren Sie die Datenschutzerklärung von Google.
Mehr erfahren

Karte laden

Die dargestellte Position der Immobilie ist nur eine ungefähre Angabe.

Direktanfrage

 SSL-verschlüsselt
Immobiliendaten-Import und Darstellung für WordPress: WP-ImmoMakler®
Nach oben